Zum Hauptinhalt springen

Menü

Modell M 014 P

Wohnfläche: ca. 193,55 m²


Erdgeschoss

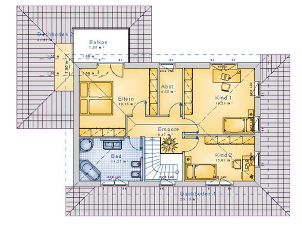
Obergeschoss



Daten dieses Modells

Wohn-/Nutzfläche gesamt:
ca. 193,55 m²
Wohnfläche OG
59,87 m²
Wohnfläche EG
77,12 m²
Außenmaße
14,74 x 11,49 m
Dachform und Neigung
Walmdach 25°
Drempelhöhe
0 m
Bild zeigt Extras!